Modern living on small plots
For some building plots, it may be better not to place the entrance the eaves side of the house, as is usually the case, but on the gable side, as in the Hanse Haus Semi-Detached House 45-123. Depending on the location of the plot, driveways and the placement and orientation of the house may be better planned.
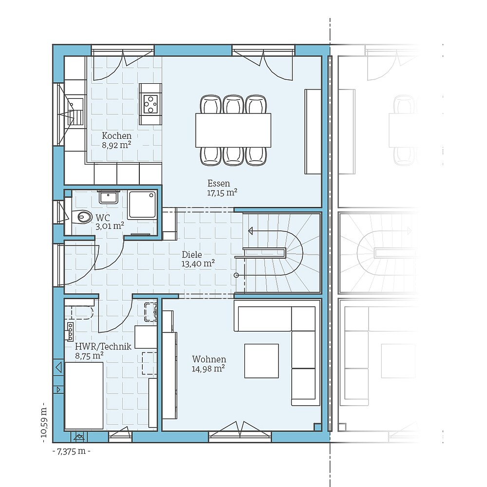
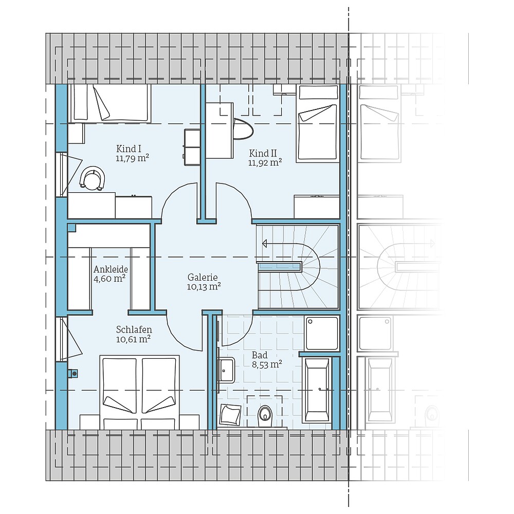
The prefabricated Semi-Detached House 45-123 offers a large open cooking and dining area on the ground floor, which is designed as a kitchen that fosters communication and forms the heart of family life. A separate living room, a utility and technical room, and the guest toilet occupy the rest of the space on the ground floor. The loft features two children’s rooms, the master bedroom with a dressing room, and a family bathroom.
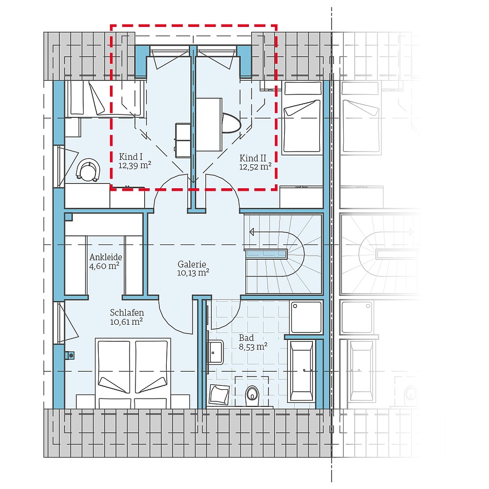
The total space of 123 m² in this Semi-Detached House can be expanded with the optional wall dormer.
| Characteristics | |
|---|---|
| Roof form | Pitched roof |
| Roof inclination | 45 ° |
| Jamb wall | 50 cm |
| Living space per unit | 109,36 m² |
| Base area per unit | 123,79 m² |
| Number of floors | 1,5 |
Possible
extensions:
- Wall dormer
Floor plan
example
Get an impression of this house through the floor plans. We will show you our planning suggestions, which of course can be customised on request.
We have also prepared some interesting planning options for this house. Click through them and see for yourself which variants we have come up with.


Request without obligation & free of charge our prefabricated house catalog with detailed information about the company as well as all house designs or construction performance and equipment descriptions. In addition, you will find the prices for our campaign houses in our campaign brochure.












